The Onyx - Eye Catching Exterior and interior
Overview
Features
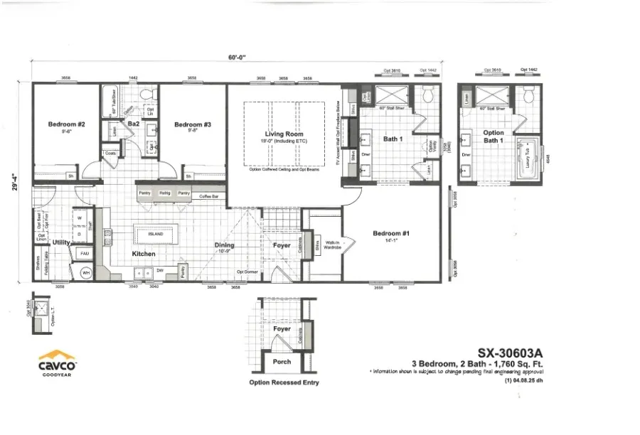
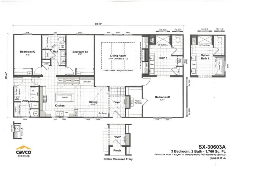
Floor Plan
- IN STOCK
- SALE
The Onyx - Eye Catching Exterior AND Interior
BEFORE OPTIONS
3 beds
2 baths
1,760 sq. ft.
Overview
Spacious 3-bedroom, 2-bath home offering an upgraded kitchen, generous open living area, and an elegant glamour bath designed for modern living.
Features
Solid Surface Countertop
Gourment Kitchen
Glamour Bath
Built in shelving
Open floorplan
Floor Plan

We accept trades!
Find a new home you love? Contact us for more information about our trade-in requirements and to schedule your free trade evaluation.
Learn More












